Ellison Bronze Technical Drawings & Specifications
Use the navigation below to browse and download Ellison Bronze technical drawings and specifications. Available file formats include PDF, DOC and DWG. If you have any questions or experience any issues related to the resources available here, please contact us at info@ellisonbronze.com or call (800) 665-6445.
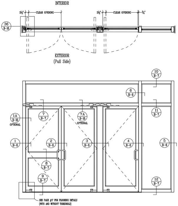
- Stile and Rail Doors
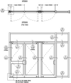
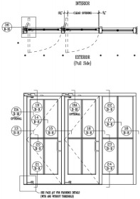
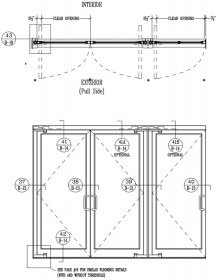
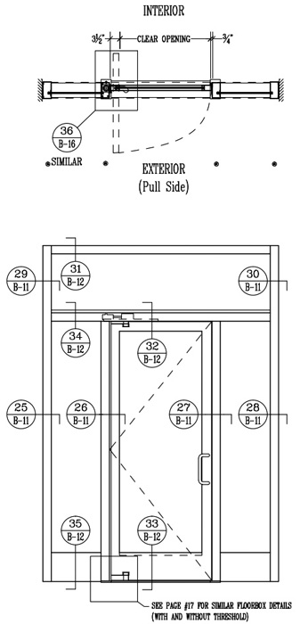
- B. Bronze
Formed Bronze
B1. Concealed Shaft Applied Glass Stop
Formed Bronze
B2. Concealed Shaft Multi-Light Applied Glass Stop
Formed Bronze
B3. Concealed Shaft Flush Glazed Glass Stop
Formed Bronze
B4. Exposed Shaft Applied Glass Stop
AIA Continuing Education
Receive 1 AIA CES HSW/SD credit hour through our new online course.




