Ellison Bronze Technical Drawings & Specifications

Use the navigation below to browse and download Ellison Bronze technical drawings and specifications. Available file formats include PDF, DOC and DWG. If you have any questions or experience any issues related to the resources available here, please contact us at info@ellisonbronze.com or call (800) 665-6445.

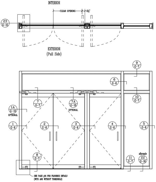
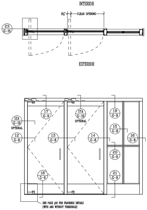
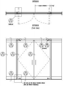
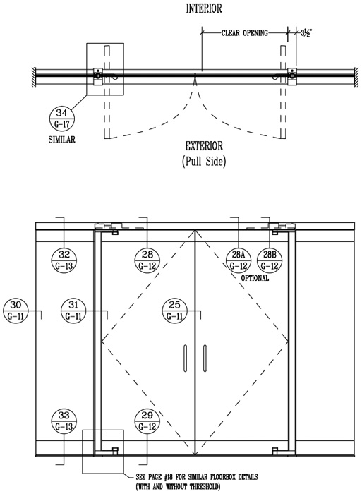
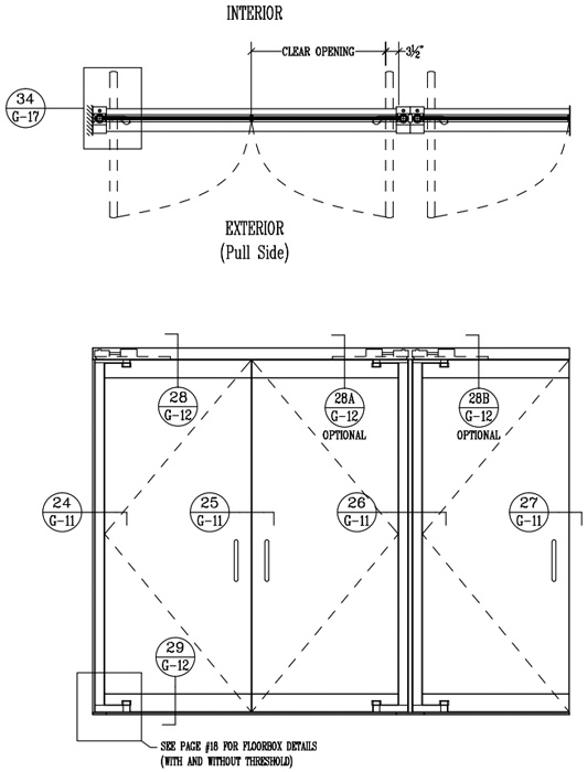
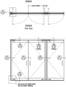
  • Tempered Glass Doors
  • G. Extruded Aluminum

Certifications

 

AIA Continuing Education

Receive 1 AIA CES HSW/SD credit hour through our new online course.