Ellison Bronze Technical Drawings & Specifications
Use the navigation below to browse and download Ellison Bronze technical drawings and specifications. Available file formats include PDF, DOC and DWG. If you have any questions or experience any issues related to the resources available here, please contact us at info@ellisonbronze.com or call (800) 665-6445.
- PowerNow: Power-Operated Doors
- P. Extruded Aluminum Stile and Rail
Power-Operated Extruded Aluminum
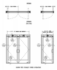
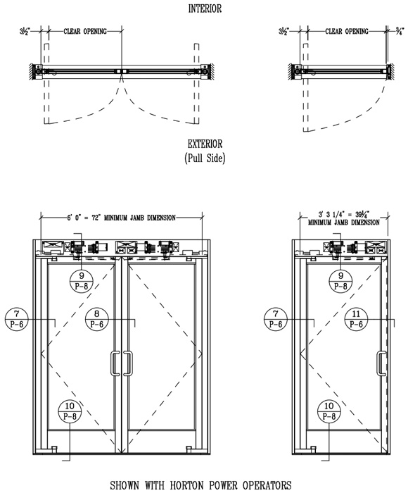
P1. Concealed Shaft with Horton PowerNow
Power-Operated Extruded Aluminum
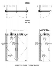
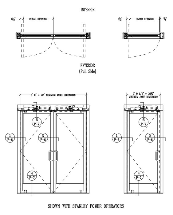
P2. Concealed Shaft with Stanley PowerNow
Power-Operated Extruded Aluminum
P3. Exposed Shaft with Horton PowerNow
Power-Operated Extruded Aluminum
P4. Exposed Shaft with Stanley PowerNow
AIA Continuing Education
Receive 1 AIA CES HSW/SD credit hour through our new online course.




