Ellison Bronze Technical Drawings & Specifications
Use the navigation below to browse and download Ellison Bronze technical drawings and specifications. Available file formats include PDF, DOC and DWG. If you have any questions or experience any issues related to the resources available here, please contact us at info@ellisonbronze.com or call (800) 665-6445.
- PowerNow: Power-Operated Doors
- O. Bronze Stile and Rail
Power-Operated Formed Bronze
O1. Concealed Shaft with Horton PowerNow
Power-Operated Formed Bronze
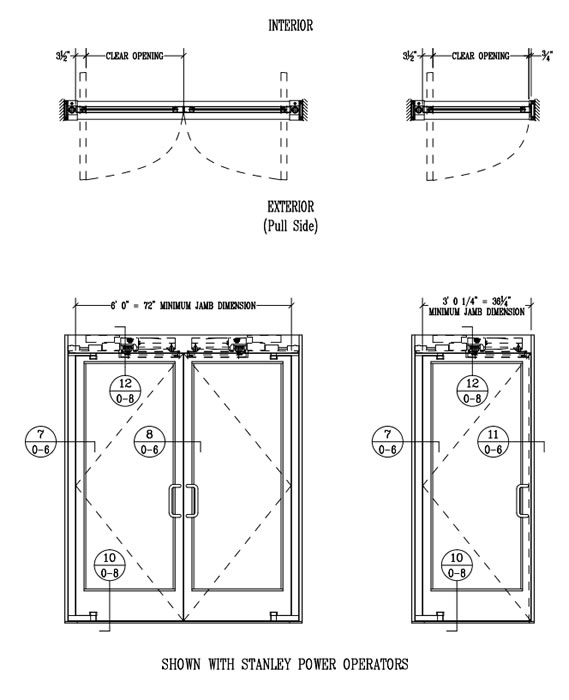
O2. Concealed Shaft with Stanley PowerNow
Power-Operated Formed Bronze
O3. Exposed Shaft with Horton PowerNow
Power-Operated Formed Bronze
O4. Exposed Shaft with Stanley PowerNow
AIA Continuing Education
Receive 1 AIA CES HSW/SD credit hour through our new online course.




