Ellison Bronze Technical Drawings & Specifications
Use the navigation below to browse and download Ellison Bronze technical drawings and specifications. Available file formats include PDF, DOC and DWG. If you have any questions or experience any issues related to the resources available here, please contact us at info@ellisonbronze.com or call (800) 665-6445.
- Wood Doors
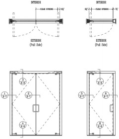
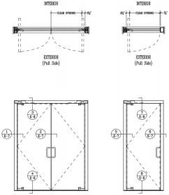
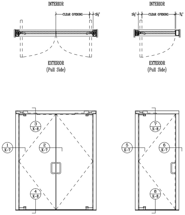
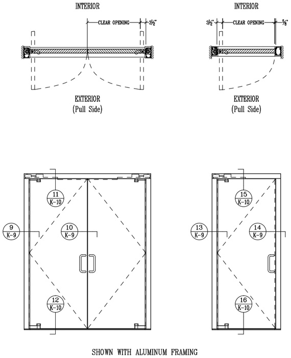
- K. Wood with Metal Frames
Wood
K1. Wood with Stainless Steel Frame
Wood
K2. Wood with Bronze Frame
Wood
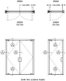
K3. Wood with Aluminum Frame
AIA Continuing Education
Receive 1 AIA CES HSW/SD credit hour through our new online course.



