Ellison Bronze Technical Drawings & Specifications
Use the navigation below to browse and download Ellison Bronze technical drawings and specifications. Available file formats include PDF, DOC and DWG. If you have any questions or experience any issues related to the resources available here, please contact us at info@ellisonbronze.com or call (800) 665-6445.
- PowerNow: Power-Operated Doors
- S. Extruded Aluminum Narrow Stile
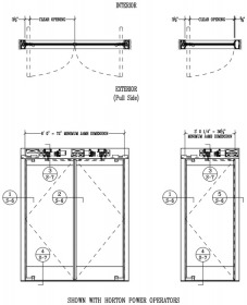
Power-Operated Extruded Aluminum
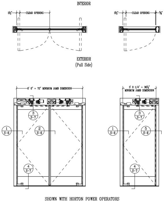
S1. Concealed Shaft with Horton PowerNow
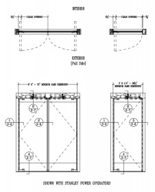
Power-Operated Extruded Aluminum
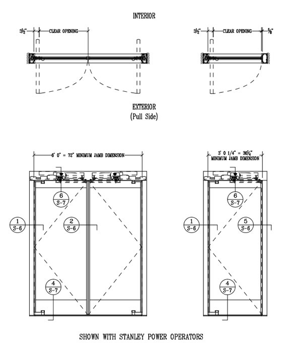
S2. Concealed Shaft with Stanley PowerNow
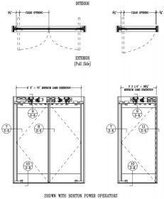
Power-Operated Extruded Aluminum
S3. Exposed Shaft with Horton PowerNow
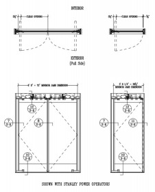
Power-Operated Extruded Aluminum
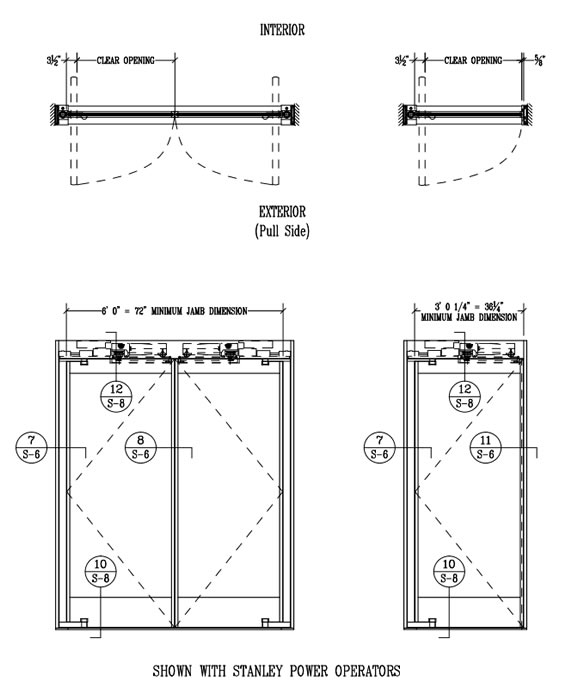
S4. Exposed Shaft with Stanley PowerNow
AIA Continuing Education
Receive 1 AIA CES HSW/SD credit hour through our new online course.




