Ellison Bronze Technical Drawings & Specifications
Use the navigation below to browse and download Ellison Bronze technical drawings and specifications. Available file formats include PDF, DOC and DWG. If you have any questions or experience any issues related to the resources available here, please contact us at info@ellisonbronze.com or call (800) 665-6445.
- Narrow Stile Tempered Glass Doors
- I. Bronze
Formed Bronze
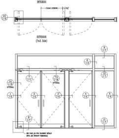
I1. Concealed Shaft
Formed Bronze
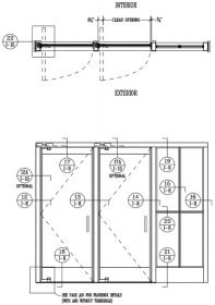
I2. Concealed Shaft Multi-Light
Formed Bronze
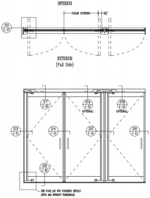
I3. Exposed Shaft
Formed Bronze
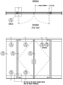
I4. Exposed Shaft Sidelights
AIA Continuing Education
Receive 1 AIA CES HSW/SD credit hour through our new online course.




